With the unanimous blessing of the city’s Design Commission, plans to renovate and and restore the historic Barton Springs Bathhouse continue to move forward.
Barton Springs’ 1947 bathhouse is unimpeachably historic, with city, state and federal historic designations that all come with their own set of requirements for the rehab. On the city’s end, that includes trips to the Historic Landmark Commission and the Design Commission as well as extensive, ongoing public outreach that launched in 2018 with a design meeting. November’s Design Commission vote confirmed that the project meets the design and sustainability standards set by the city.
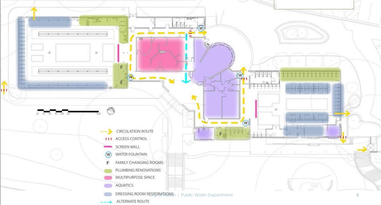
The project, which has an estimated cost of $8 million, will be funded by a combination of 2012 bond money, historic preservation fund dollars, grants and donations. The rehabilitation encompasses the showers on both sides of the building, and opening up the rotunda as an entrance to the pool.
“We are bringing back the historical configuration of (the rotunda) so that we can have an entrance to the pool through there,” said Riley Triggs, with the city’s Public Works Department. In the process, the project team will be reversing some changes that date from the 1980s. “Nothing good, architecturally-wise, happened in the ’80s. No difference here,” he said. In addition, there will be changes to the current Splash exhibit and interior spaces of the rotunda.
Architect Laurie Limbacher explained that, originally, the public would enter through the rotunda before going to one of the “basket rooms” to change out of more formal attire into swimsuits. However, as traditions changed and people began arriving already suited up, the concept of basket rooms fell out of fashion and the areas were repurposed, with the men’s side becoming what is now the Splash exhibit and administrative offices taking over the women’s side.

“It’s going to be really exciting to be able to bring people back … through the center of the building,” she said. “That was one of the primary goals of the project.”
The showers will be re-plumbed and will receive new fixtures, and some structural issues with the tile and concrete, which have deteriorated over the years, will be repaired. “A lot of the work in this area will be trying to repair and restore things that have just gotten old over the years,” Triggs said.
The structure will be shored up on the west side to address flooding and an entrance will be added, past the men’s facilities, for those who have purchased tickets from automated kiosks.
The bathhouse rehab precedes the vision plan that is currently underway for Zilker Park and is part of an earlier plan that was approved by City Council in 2009. Though the design team did attempt to tackle parking by the main entrance, Limbacher said “that got really complicated.” So for now, the only change will be to eliminate angle parking in favor of 90-degree parking. Any other changes will be part of the current visioning process.
“(This is) long overdue for all of us,” Commissioner Aan Coleman said. “I’m thrilled that it’s actually happening.”
The Austin Monitor’s work is made possible by donations from the community. Though our reporting covers donors from time to time, we are careful to keep business and editorial efforts separate while maintaining transparency. A complete list of donors is available here, and our code of ethics is explained here.
